Info ↓
Info ↑

















Ersatzneubau
Bauherrschaft
Privat
Baukosten
BKP 1 - 9 CHF 1.6 Mio.
Kubatur
1'075 m³
Projekt
Wohnhaus, Ersatzneubau ausserhalb Bauzone
Leistung
Gesamtleistung: Vorprojekt, Projekt, Ausführungsplanung, Ausführung
Planungs- und Bauzeit
Projektierung 2019, Realisierung 2020
Farb- und Materialkonzept
Röösli Architekten AG
Fotos
Daniela Burkart, Luzern
Regine Giesecke, Zug
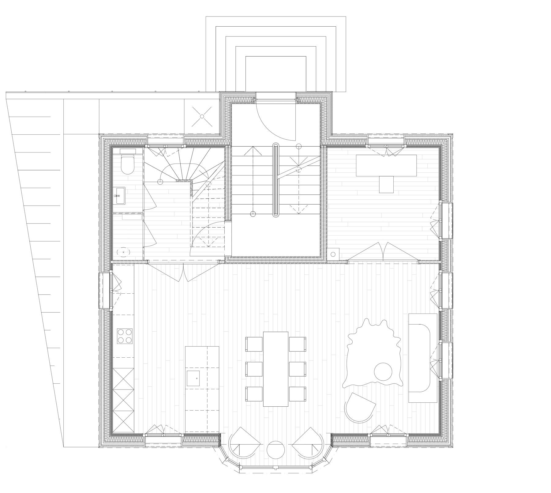
Der ehemalige Bauernhof Schönau in Baar wurde mit einem anderen Landwirtschaftsbetrieb zusammengelegt. Das ehemalige Bauernhaus wird nicht mehr zu landwirtschaftlichen Zwecken genutzt. Es konnte unter restriktiven Auflagen als zonenfremde Nutzung umgewandelt werden. Das bestehende Bauernhaus aus den 1930er-Jahren konnte abgebrochen und am selben Standort eine Ersatzbaute mit zwei Wohnungen errichtet werden.
Wir wählten an den Bestand angelehnt, eine selbe Typologie mit verputztem Erdgeschoss und Ober- und Dachgeschossen in Holz. Auch die Dachlandschaft ist dieselbe. Neu verlegten wir das Mittelrisalit mit Treppenhaus an die Ostseite. An der besonnten Westfassade liegen im leicht abfallenden Hang die Gärten, daran schliesst das Gebäude mit Küche, Essen und Wohnen an. Der Bauherr wünschte einen Wintergarten, wir erarbeiteten eine elegant geschwungene Veranda mittig der Fassade. Dank der filigranen Veranda ist der Garten an das Gebäude angebunden.
Die Fassade besteht aus sehr schlanken, hochrechteckigen zweiflügligen Fenstern welche mit Markisen in Rosarot beschattet werden. Die Fenster sind klassisch in die Fassade gesetzt. Für den Sockel, bzw. das Erdgeschoss wählten wir einen Schlämmputz mit eingestreuten Steinen in Schwarz und Rot, darüber vertikale Latten aus Douglasie in Silber behandelt. Die Vordachuntersicht ist dezent in Hellblau gestrichen.