Info ↓
Info ↑


















Neubau
Bauherrschaft
privat
Baukosten
BKP 2 CHF 4.15 Mio.
Kubatur
4'700 m³
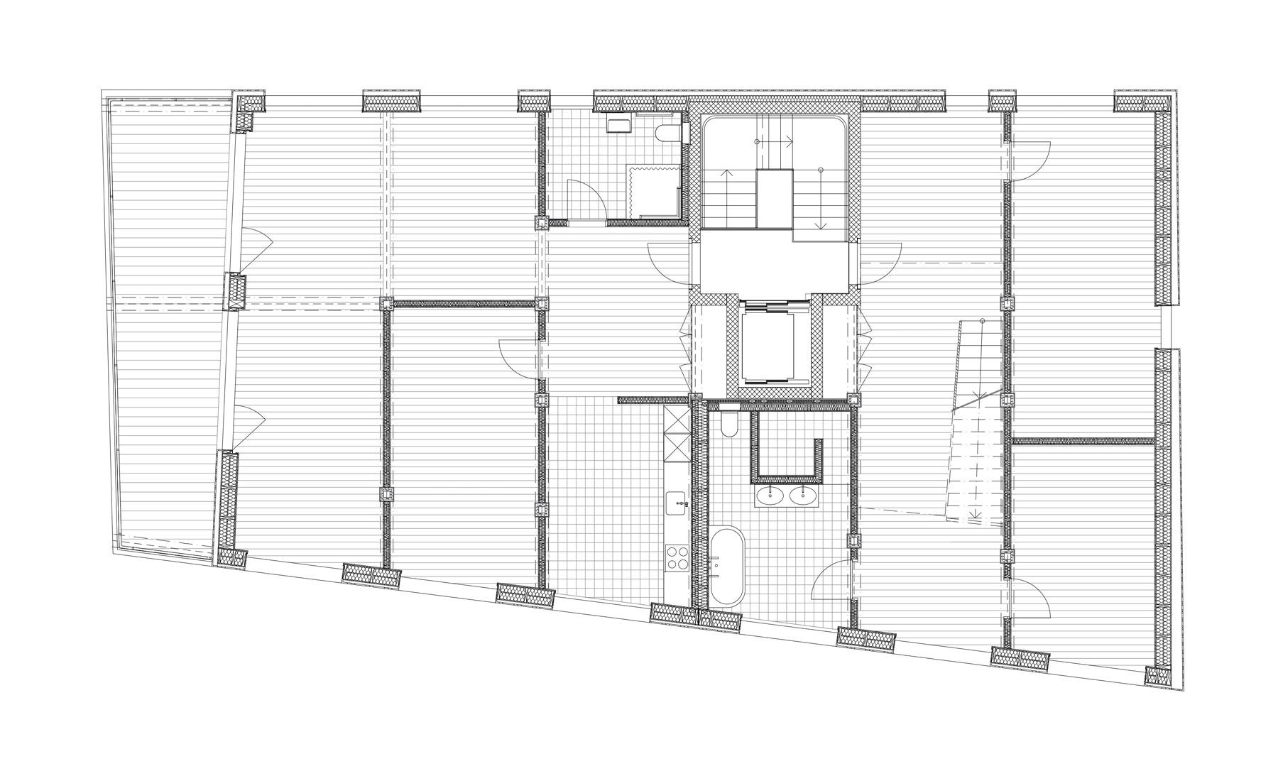
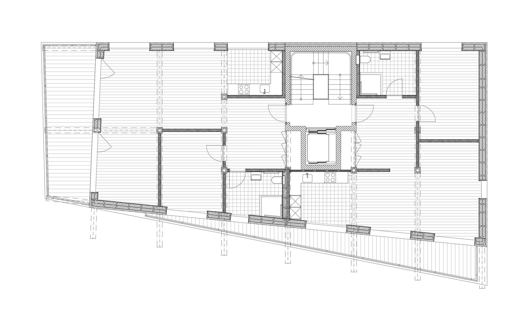
Projekt
Abbruch bestehendes Wohnhaus und Neubau mit 7 altersgerechten Wohnungen und Gewerbe im Erdgeschoss
Planungs- und Bauzeit
Projektierung 2013, Realisation 2014 - 2016
Farb- und Materialkonzept
Röösli Architekten AG
Fotos
Guido Baselgia, Malans
Eine private Bauherrschaft umschrieb soziale und ökologische Prämissen für einen Neubau auf seinem Grundstück: Es soll ein Mehrfamilienhaus mit altersgerechten Wohnungen, ausgerichtet auf die Generation 55+ geplant und realisiert werden.
Die Primär- und Sekundärstruktur sowie die Fassade sollen in Holz realisiert werden. Dieses Ziel ist trotz der hohen Geschosszahl von fünf Ebenen und damit entsprechend strengen Brandschutzanforderungen für den Holzbau einzuhalten.
Das architektonische Konzept beruht auf aufgestapelten Holzkisten welche bewusst nicht exakt übereinander liegen. Dadurch entstehen reizvolle Vor- und Rücksprünge. Die Grundrisse orientieren sich streng nach einem Raster mit identischen Achsmassen. Diese Reihung führt zu klaren und flexiblen Grundrissen. In den Wohnungen sind Entreé, Nasszelle und Küche grossflächig gestaltet damit die Wenderadien von Rollator und Rollstuhl berücksichtigt werden können. Die Ausstattung orientiert sich nach einer altersgerechten Ergonomie.
Im Erdgeschoss steht ein allgemeiner Gewerbeteil für verschiedene Nutzungen zur Verfügung.