Info ↓
Info ↑

























Instandsetzung und Modernisierung
Planerwahl 1. Rang
Bauherrschaft
Einwohnergemeinde Stadt Zug
Baukosten
BKP 2 CHF 4.65 Mio.
Kubatur
2'314 m³ (beide Häuser)
Projekt
Instandsetzung und Modernisierung Wohnhäuser mit Gewerbe im EG
Planungs- und Bauzeit
Projektierung 2015, Realisierung 2016 - 2018
Farb- und Materialkonzept
Röösli Architekten AG
Fotos
Regine Giesecke, Zug
historisches Foto: Nigg, Walter / Quelle: Amt für Denkmalpflege und Archäologie Zug
Die Häuser an der Kirchenstrasse 3+5 in Zug wurden nach der Altstadtkatastrophe von 1435 unter grossem Zeitdruck ab 1437 erstellt. Im frühen 17. Jahrhundert erhielten die Häuser ihr heutiges Volumen. 1937 wurde die Fassade grundlegend umgestaltet, der Keller ausgebaut und der Hof zugunsten einer ausgebauten Bäckerei mit Backstube und Verkaufsladen ausgebaut. Zuletzt wurde die Backstube aufgegeben und der Verkaufsladen als Filiale geführt. Die Wohnungen waren zuletzt untergenutzt und «verlebt».
Die Sanierung umfasste eine grundlegende «Entrümplung» der städtebaulichen Situation. Sämtliche Anbauten im Hof wurden abgebrochen. Die Fassaden wurden von unkontrollierten Veränderungen befreit und in ihren ursprünglichen Zustand zurückgesetzt. Besonders die Dächer waren vor der Sanierung bis auf die horizontale Linie der Traufe nicht mehr als Steildach erkennbar und wurde mit Lukarnen bestückt, wieder hergestellt. Im Hof konnten die früheren Hauszugänge geöffnet werden und zwischen dem Neubau Pfauen und der Liegenschaft Kolinplatz 19 eine Fussweggasse geöffnet werden. Dazu transformierten wir den Türbogen mit dem darüber liegenden Familienwappen Schwerzmann zu einem Torbogen. Der Hof wurde als Teil der gesamten baulichen Veränderungen gestaltet, terrassiert und begrünt. Er dient im heissen Sommer als kühle Gartenwirtschaft. Die Altstadt von Zug hat dank den Sanierungen der Liegenschaften Kolinplatz 19, Kirchenstrasse 3+5 und des Neubaus «zum Pfauen» neuen Wohnraum erhalten und neues Gewerbe angesiedelt. Auch die Aussenräume, beidseits der Fassaden können neu von der Öffentlichkeit wechselseitig genutzt werden.
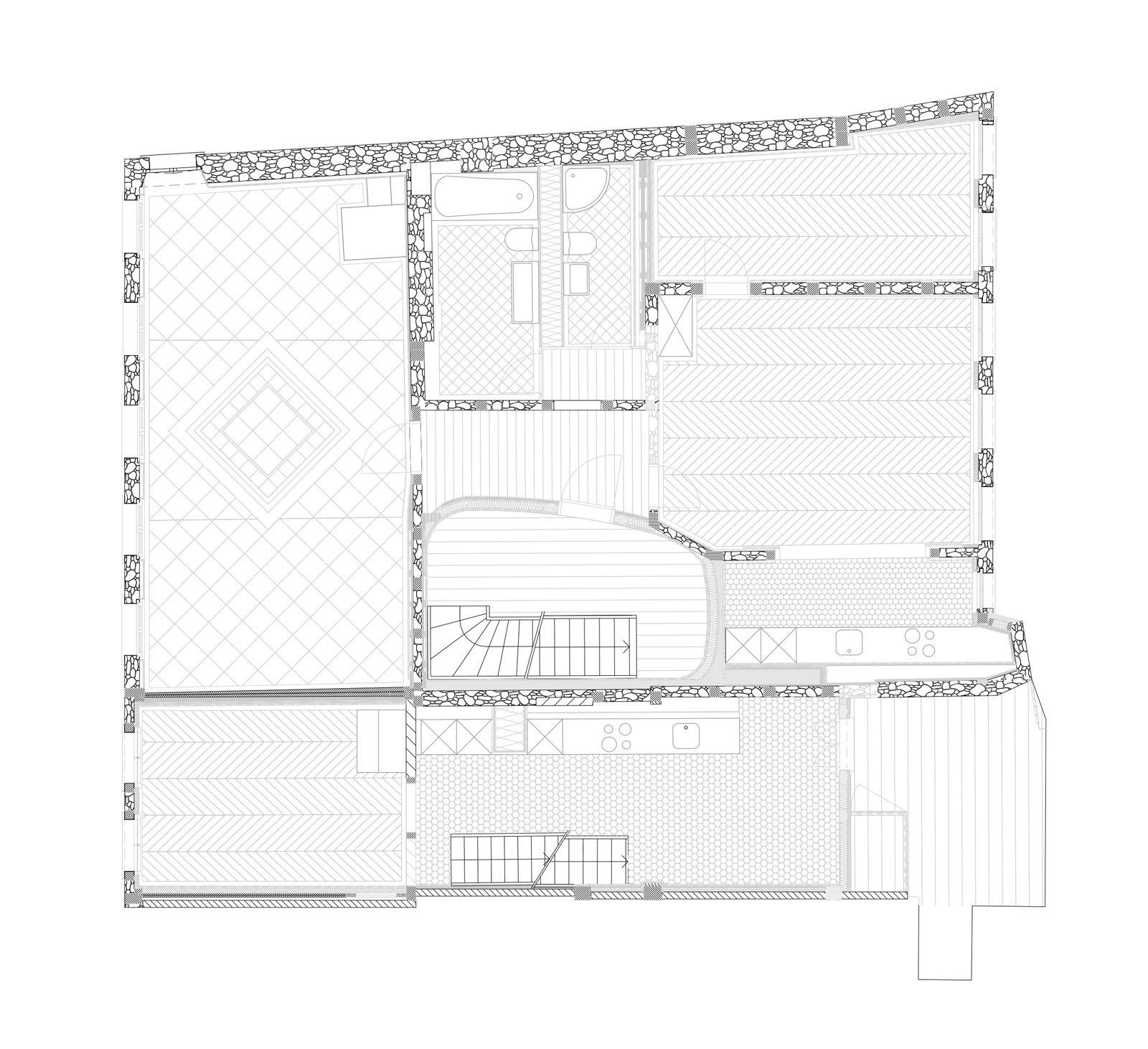
Die Gestaltung der Räume stammen aus verschiedenen Zeiten. Wir haben sämtliche verwertbaren Materialien sorgfältig demontiert und an selber Stelle wieder eingebaut. In den oberen Stockwerken der Kirchenstrasse 3 entwickelten wir aufgrund des Befunds mit Pressfurnierplatten an den Wänden und auf dem Boden massive Langriemen in Douglaise Raumbilder aus den 1930er-Jahren. Ein Geschoss darunter stellen die Räume mit farbig bemalten Wand- und Brusttäfer sowie Krallentäfer eine frühere Zeitepoche dar. Auf den Böden verlegten wir Massivholzparkett in Buche im Fischgratmuster, in einem Raum legten wir restaurierten Würfelparkett ein. Oberhalb des Brusttäfers erinnert ein Farbanstrich an die vorgefundenen aber nicht mehr reversiblen Wandtapeten.
Für die Küchen und Nassräume wählten wir für alle Wohnungen eine einheitliche Ausdrucksform, zusammen mit dem Hexagonplatten und zweifarbigen Diagonalplatten liegen sie im Einklang mit dem historischen Haus. Einzig die Küchen in der Kirchenstrasse 5 sind modern gestaltet.
Besonders wertvoll war die bisher verborgene Grisaillemalerei aus der Zeit um 1607-1631, welche eine Einhornjagd darstellt. Diese liessen wir fachgerecht sichern und gibt zusammen mit dem restaurierten Diagonalparkett aus Tanne und Nussbaum dem Wohnraum eine besondere Prägnanz.
In den sanierten Räumen sind total sechs attraktive Wohnungen und zwei Gewerbeflächen entstanden.
Der genehmigte Baukredit konnte eingehalten werden.