Info ↓
Info ↑
























Instandsetzung und Modernisierung
Bauherrschaft
privat
Baukosten
BKP 2 CHF 2'075'000.-
Kubatur
1'310 m³
Projekt
Instandsetzung und Modernisierung Wohnhaus
Planungs- und Bauzeit
Projektierung 2019, Realisierung 2019 - 2020
Farb- und Materialkonzept
Röösli Architekten AG
Fotos
Regine Giesecke, Zug
Christian Herbert Hildebrand, fotozug.ch
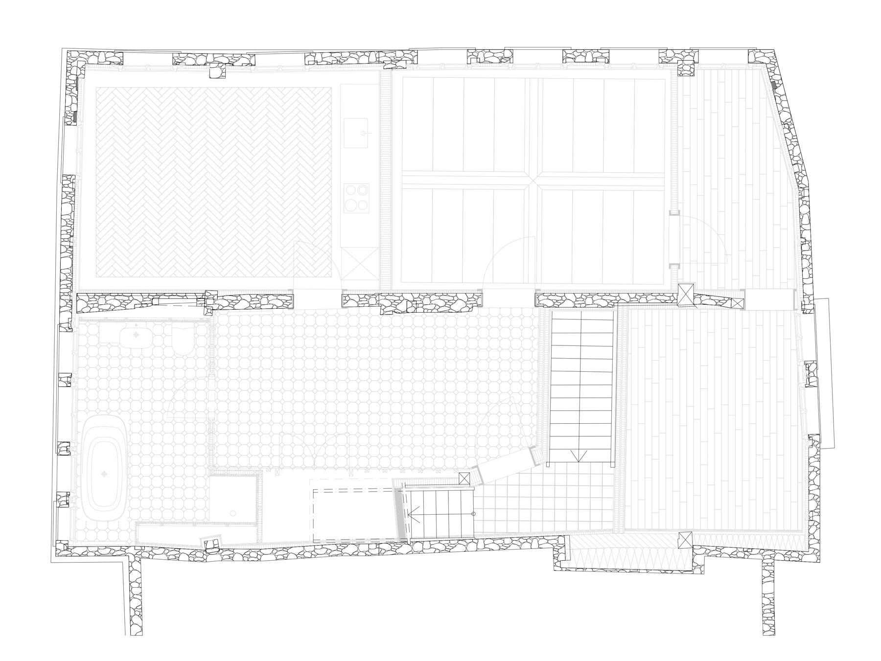
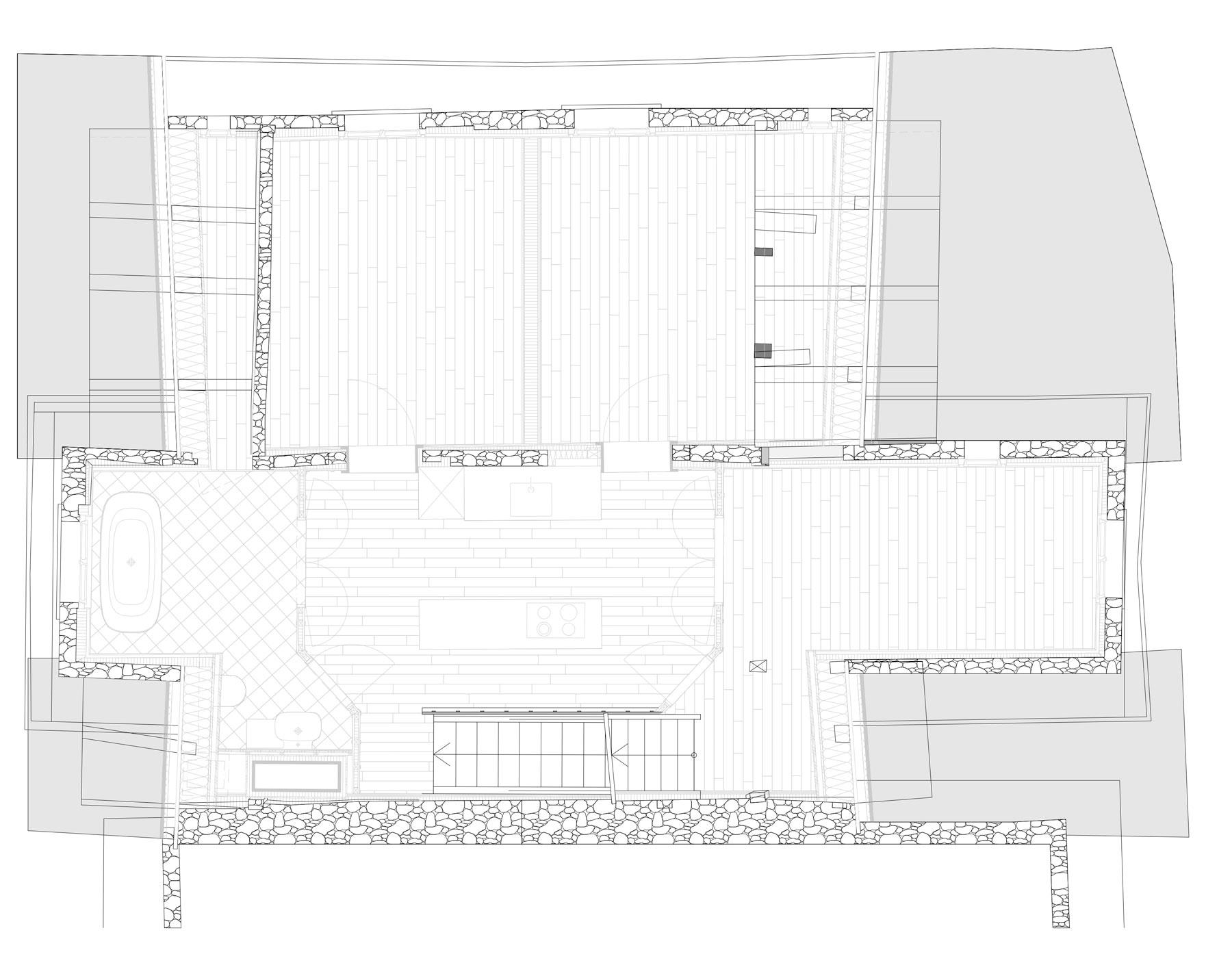
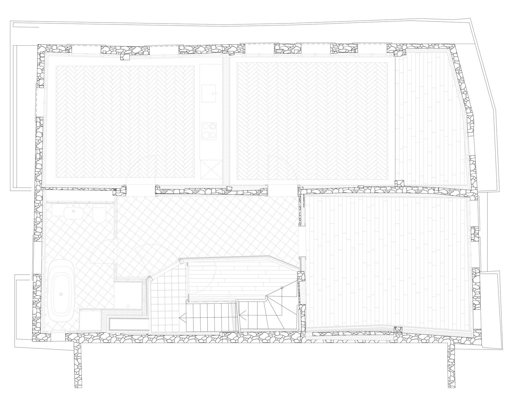
Die denkmalgeschützte Liegenschaft Ägeristrasse 20 in Zug wurde vollständig saniert. Dabei blieb die Primärkonstruktionen aus der Bauzeit um 1400 und die Aufrichte zum Steildach aus dem 17. Jahrhundert erhalten. Diese Konstruktionen wurden in Holzbauweise verstärkt und infolge des Einbaus von Etagenwohnungen mit Brandschutzmassnahmen ausgerüstet.
Die vorhandene Raumeinteilung erwies sich auch für heutige Wohnbedürfnisse als ideal und wurde praktisch unverändert übernommen. Dabei liessen wir die bestehenden Kassettendecken, die Treppen aus Holz und Raumtrennwände mit geätztem Glas erhalten. Für die sanierten Wohnungen implementierten wir mit dem Einbau von Brusttäfer und Fischgratparkett in den Primärräumen ein dem Haus passende Ausstrahlung. Küchen und Nassräume wurden modern und komfortabel ausgestattet. Aufgrund Farbbefunden wurde die Fassade in ihrer Farbigkeit auf den Zustand aus der Zeit anfangs 20. Jahrhundert zurückgesetzt.